KAISERSTÖCKL

SCHLOSS SCHÖNBRUNN | 2011 - 2013

AUFTRAGGEBENDE | SCHLOSS SCHÖNBRUNN KULTUR- UND BETRIEBSGES.M.B.H.

PROJEKTBESCHREIBUNG | Das sogenannte Kaiserstöckl im Schlosspark Schönbrunn ließ Maria Theresia für ihren Leibarzt Van Swieten errichten. Die Obergeschosse dienten anschließend über Jahrzehnte als Postverteilzentrum, dies führte zu extremen Gebrauchsspuren an den historischen Stuckausstattungen und der Holzbauteile . Im Zuge der Generalsanierung wurden sekundäre Zwischenwände bzw. Einbauten entfernt und eine neue Aufzugsanlage eingebaut. Die historischen Oberflächen konnten restauriert werden, wodurch der ursprüngliche Raumeindruck der Innenräume wieder besteht. Während der Restaurierungsarbeiten kamen Fragmente eines bauzeitlichen Luftheizungssystems zum Vorschein. Dieses System diente vermutlich als Prototyp für später in Wiener Krankenhausbauten eingebaute Heizsysteme. Die Bauforschung wurde gemeinsam mit Dr. Kippes erarbeitet und in einem Manuskript dokumentiert.

VORZUSTAND
 BAUPHASE
FERTIGSTELLUNG
DETAIL STUCK
LÜFTUNGSKANÄLE BODENÖFFNUNGEN
SCHAUBILD HISTORISCHES HEIZSYSTEM
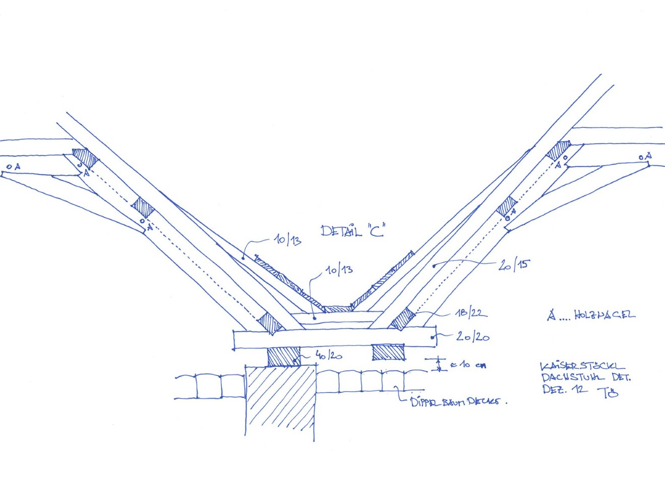
DACHKONSTRUKTION / STATISCHES SYSTEM
DETAILSKIZZE DACHKONSTRUKTION